その他の最近のブログ記事
・【RC造新築賃貸マンション・1K・1LDK】完成物件のご紹介
皆さまこんにちは!
春を通り越して、今日は夏か!?というくらいの陽気です。暑いですね・・・
では、東矢口の現場日記を更新いたします___![]()
今日は完成しました物件をご紹介したいと思います。
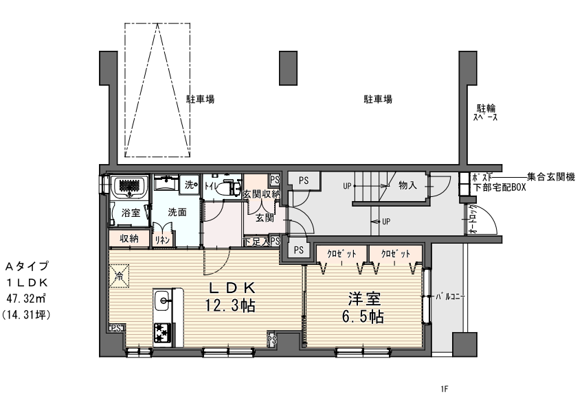
当物件は【1K・1LDK】の間取りとなっております。
【1K】
【1LDK】
地上4階建ての1K・1LDK、RC造賃貸マンション。
現在入居者募集中です!入居をご検討されている方は、(株)希々様までお問い合わせをお願いいたします(・∀・)
では、次回のブログで最終回となりますので
最後までよろしくお願いいたします。
・1K・1LDK新築賃貸マンション建設中
皆さまこんにちは!
季節外れのこの暑さ!!まだまだ残暑厳しいですね(;_;)
では、現場日記を更新いたします。
大田区東矢口3丁目にて、建設中の鉄筋コンクリート造賃貸マンション。
この度、完成予想パースが変更となりました。

今回は、当物件の間取りをご紹介したいと思います。
鉄筋コンクリート造の地上4階建て、新築賃貸マンション。
間取りは1K・1LDKになります。
【1階】
【2階から4階】
以上になります(^_^)
管理会社はまだ未定とのことなので、詳細が決まり次第またブログでご紹介いたします。
・工事を始める前に│地鎮祭を行いました
皆さまこんにちは!
台風が接近中とのことで・・・。せっかくのお休みは荒れたお天気になりそうですね。
十分に注意してください。
・
・
・
では!東矢口の現場日記を更新いたします。
本日は工事を始める前の地鎮祭の様子をご紹介いたします__![]()
地鎮祭とは、工事の安全と建物の繁栄を祈願するために行う儀式になります。
土地の神様に、この土地を利用させていただくことの許しを得る儀式でもあります。
式典の中で、鍬入之儀というのがあります。
設計者・建主様・施工者がこの土地で初めての作業を行うのです。
まずはじめに、仮初(かりそめ)。設計者がこの土地で初めて草を刈ります。
そして。鍬入れ(くわいれ)。建主様が土をおこします。
最後に、穿染め(うがちぞめ)。施工者が土をならします。
玉串奉奠(たまぐしほうてん)のご紹介です。
参列者一人一人、玉串を神様に捧げる儀式になります。
玉串に自分の心をのせ、神様に捧げるという意味が込められています。
以上!
地鎮祭の様子をご紹介しました。
次回からは工事の様子をご紹介いたしますので、おたのしみにー。